One Elmwood by Hawkins\Brown and RPP Architects

Architect: Hawkins\Brown and RPP Architects
Client: Queen's University Belfast
Award: RSUA Design Award, Client of the Year

With its bright red, exposed steel frame and its succession of generous internal spaces, One Elmwood provides a dramatic new focus for the lives of the students of Queen’s University Belfast.

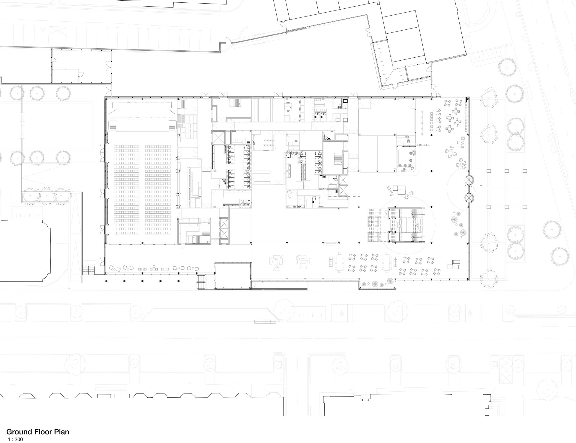
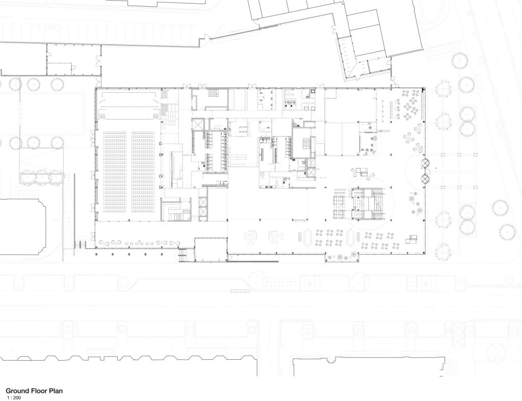
Part of the building constitutes a new home for the Students’ Union. This includes Mandela Hall, a multi-purpose space capable of accommodating gigs, performances and student fairs – something previously housed in a 1960s building formerly on the site.

The other part of the building offers a one-stop shop providing access to all the university’s student services. Giving such support to students at this stage of their life is hugely important, and the easy, informal, welcoming character of One Elmwood seemed to the jury to offer the ideal setting for these pastoral transactions.

Key to that sense of welcome is how, in section, the floors step back away from the entrance. This allows the building’s contents to be revealed to every visitor from the moment they walk through the door, helping and encouraging them to find what they need or, just as importantly, to discover what is on offer. At the end of the afternoon, when the jury visited, every part of the building was still busy – a testament to the project’s success. By now the students might have left for the day, but instead, they were gathered together in the various communal areas, socialising and/or studying. One Elmwood is clearly a good place to hang out.

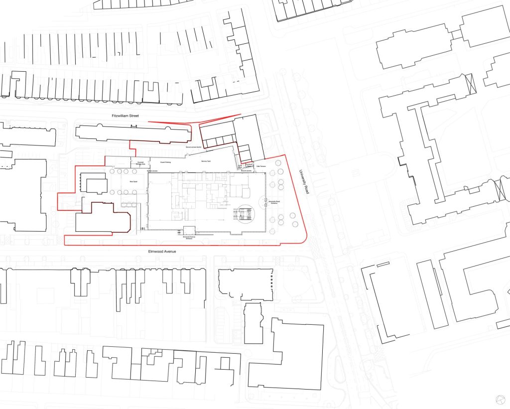
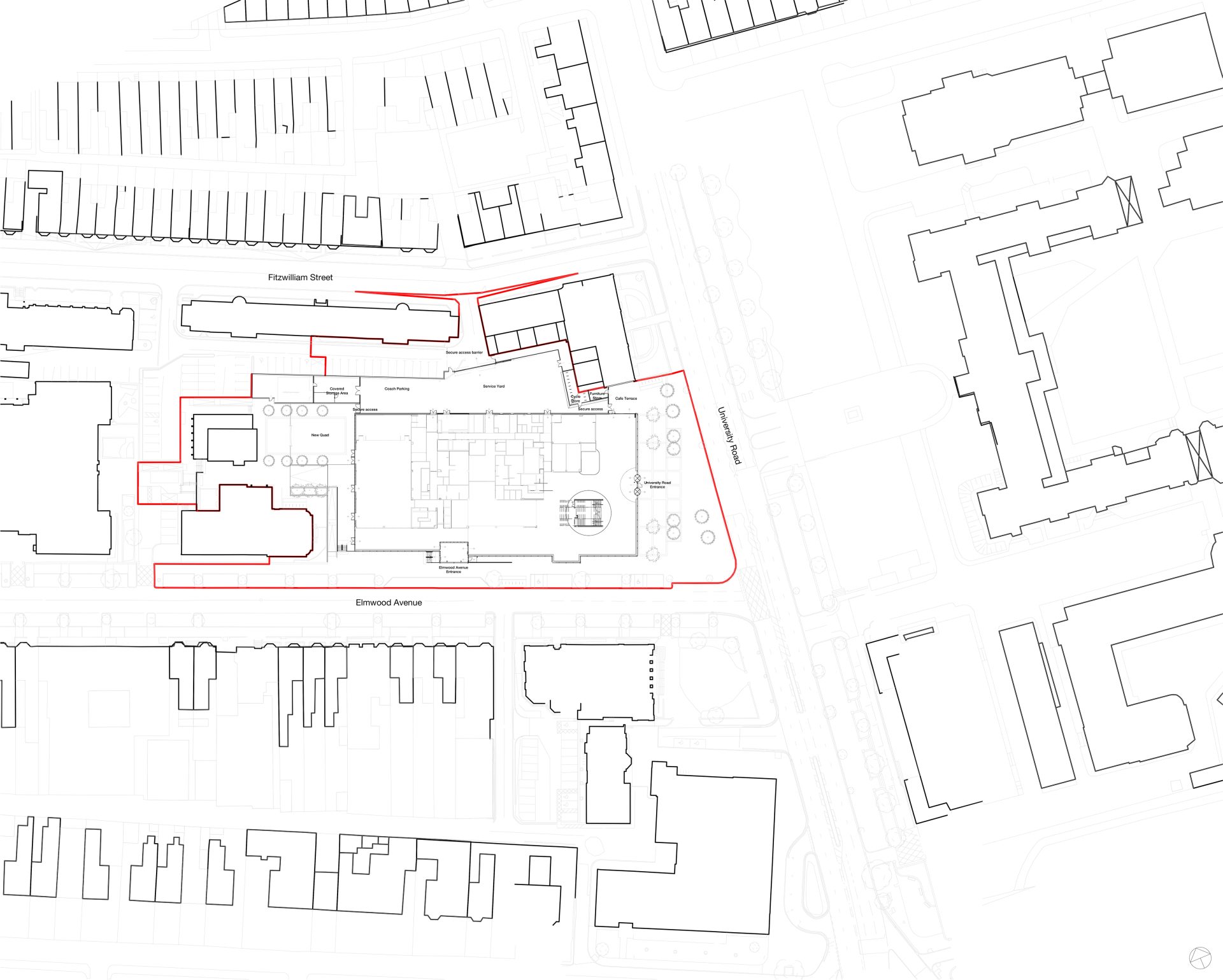
A simple rectangle on plan, the building’s four elevations each assume a different character, but the principal façade – that facing the University’s historic Lanyon Hall – is entirely glazed. This gives the building an exciting transparency at night, allowing its activities to be revealed to the passer-by. During the day this transparency is inevitably more effective from the inside out, reinforcing the importance of the relationship between the new building and its 19th-century predecessor.